XGN-40.5型固(gù)定式高低压成套开关柜
特(tè)点(diǎn):
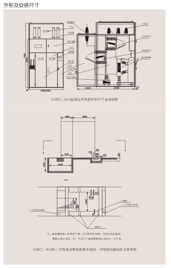
XGN口- 40.5型固定(dìng)式金属封闭开关设备(以下简称开关柜)。系(xì)三相交流50Hz单母线及单(dān)母线带旁路系统的(de)户内成(chéng)套设备。柜内配有ZN口-40.5真(zhēn)空断路器,作为40.5KV交流系(xì)统接受和分(fèn)配(pèi)电能之用。开关柜(guì)具有安全联锁装置、防误性能(néng),运行安全可靠。真空灭弧室免维护。
详(xiáng)情介绍
型号:XGN-40.5型固定式高低压(yā)成套开关柜
高低压成套开(kāi)关柜的主要技术参数:
开关柜(guì)所装配的(de)一次元件包括真空断路器、电流互感器、隔离开关、电压(yā)互感器、熔断器、避雷器(qì)、电力(lì)变压器等,在本产品的装置条件下,仍满足各自产品(pǐn)的技(jì)术性能。
高低(dī)压成(chéng)套开关(guān)柜的使用(yòng)环境条件
1、海拔不超过1000m.
2、周围(wéi)空气温度不超过,上限+40C. 下限-15C,高(gāo)寒区(qū)- 259C。
3、相对湿(shī)度不超过90%(+250C)。
4、地震裂度不超过8度。
5、没有火灾、爆炸危(wēi)险(xiǎn)、严重污染、化学腐蚀及剧烈振动的场所。




XGN-40.5型固定(dìng)式(shì)高低压成套(tào)开关柜相关信息
看了又看